Ihr Ansprechpartner
Gepflegtes MFH als starkes Renditehaus (5,6 %) oder zur teilweisen Selbstnutzung mit großer Gartenwohnung...
60431 Frankfurt am Main
222893
Objekt-Nr.:
222893Provision:
5,95 % inkl. gesetzl. MwSt. vom KaufpreisKaufpreis:
1.795.000,00 €Nebenkosten:
Objektbeschreibung
Das im Jahre 1938 gebaute Mehrfamilienhaus in zentraler Lage von Frankfurt-Ginnheim nahe der U-Bahnstation, bietet sich als Renditeobjekt sehr gut an, aber auch zur Selbstnutzung, aufgrund der großen Wohneinheiten, die wir bei Interesse frei übergeben können.
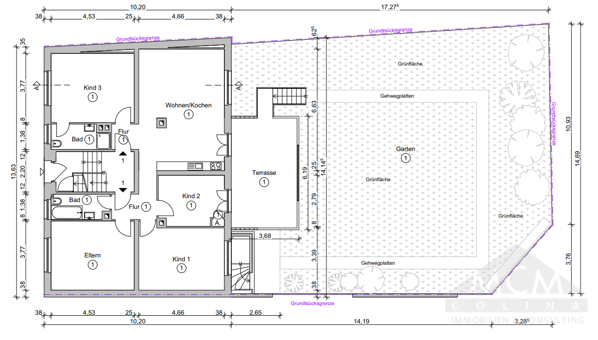
Das Haus steht auf einem großzügigem, ca. 375 m² großem Grundstück mit einem schönen rückwärtigen Garten.
In dem ehemalige 8 Familienhaus, wurden zuletzt die Erdgeschosswohnung, mit der riesigen Terrasse und dem direkten Zugang zum wunderschönen großen Gartengrundstück, sowie die 2. Wohnetage zu praktischen 4,5-Zimmer-Wohnungen zusammengelegt.
Durch die Erhaltung aller Wohnungseingänge und Anschlüssen wäre eine Aufteilung in 8 gut geschnittenen 2-Zimmer-Wohnungen zukünftig einfach wieder zu ermöglichen.
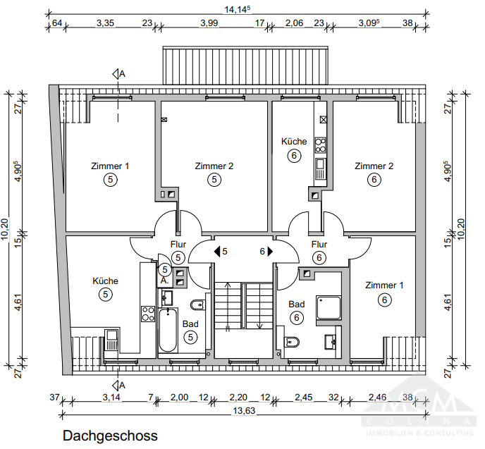
Aber man könnte auch die 1. Obergeschoßetage, sowie das Dachgeschoß zu Großwohnungen einfach zusammenführen.
Die ca. 430 m² Wohnfläche verteilen sich über vier Etagen, wobei jede Wohnung über ein Tageslichtbad verfügt.
Aktuell sind die Wohnungen im Hochparterre in zwei Einheiten aufgeteilt, wobei man hier nur die Wand aus dem Flur wieder herausnehmen müsste, um sie zu einer Großwohnung wieder zu realisieren. Diese Etage könnte kurzfristig frei übergeben werden und als 4,5-Zimmern, mit einer Einbauküche und mit zwei Tageslichtbädern punkten. Der Höhepunkt dieser Wohnung ist die großzügige Sonnenterrasse, mit einem wunderschönen Garten, welcher zur Entspannung und Erholung perfekt geeignet ist.
Beide Wohnungen, sowie die 2 Einheiten im 1. OG (mit Balkonen) und die 2 Einheiten im Dachgeschoss sind vollmöbliert an Expats vermietet.
Die Dachgeschosswohnungen glänzen durch zwei neuwertige Tageslichtbäder mit Badewanne und exklusiven Einbauküchen mit teilweise Miele Geräten.
Das Haus ist komplett unterkellert. Im Kellergeschoss befindet sich die Öl-Zentralheizung und ein Waschraum mit Fenster zu Garten. Dieser könnte zukünftig auch der Gartenwohnung als zusätzliches Hobby- oder Arbeitszimmer zugesprochen werden. Über das Kellergeschoss gelangen sie ebenfalls auf das Gartengrundstück.
Lassen Sie uns bei Interesse und Bestätigung unserer AGBs Ihre kompletten Kontaktdaten zukommen, damit wir Ihnen alle objektrelevanten Unterlagen zur Verfügung stellen können.
Das Haus steht auf einem großzügigem, ca. 375 m² großem Grundstück mit einem schönen rückwärtigen Garten.
In dem ehemalige 8 Familienhaus, wurden zuletzt die Erdgeschosswohnung, mit der riesigen Terrasse und dem direkten Zugang zum wunderschönen großen Gartengrundstück, sowie die 2. Wohnetage zu praktischen 4,5-Zimmer-Wohnungen zusammengelegt.
Durch die Erhaltung aller Wohnungseingänge und Anschlüssen wäre eine Aufteilung in 8 gut geschnittenen 2-Zimmer-Wohnungen zukünftig einfach wieder zu ermöglichen.
Aber man könnte auch die 1. Obergeschoßetage, sowie das Dachgeschoß zu Großwohnungen einfach zusammenführen.
Die ca. 430 m² Wohnfläche verteilen sich über vier Etagen, wobei jede Wohnung über ein Tageslichtbad verfügt.
Aktuell sind die Wohnungen im Hochparterre in zwei Einheiten aufgeteilt, wobei man hier nur die Wand aus dem Flur wieder herausnehmen müsste, um sie zu einer Großwohnung wieder zu realisieren. Diese Etage könnte kurzfristig frei übergeben werden und als 4,5-Zimmern, mit einer Einbauküche und mit zwei Tageslichtbädern punkten. Der Höhepunkt dieser Wohnung ist die großzügige Sonnenterrasse, mit einem wunderschönen Garten, welcher zur Entspannung und Erholung perfekt geeignet ist.
Beide Wohnungen, sowie die 2 Einheiten im 1. OG (mit Balkonen) und die 2 Einheiten im Dachgeschoss sind vollmöbliert an Expats vermietet.
Die Dachgeschosswohnungen glänzen durch zwei neuwertige Tageslichtbäder mit Badewanne und exklusiven Einbauküchen mit teilweise Miele Geräten.
Das Haus ist komplett unterkellert. Im Kellergeschoss befindet sich die Öl-Zentralheizung und ein Waschraum mit Fenster zu Garten. Dieser könnte zukünftig auch der Gartenwohnung als zusätzliches Hobby- oder Arbeitszimmer zugesprochen werden. Über das Kellergeschoss gelangen sie ebenfalls auf das Gartengrundstück.
Lassen Sie uns bei Interesse und Bestätigung unserer AGBs Ihre kompletten Kontaktdaten zukommen, damit wir Ihnen alle objektrelevanten Unterlagen zur Verfügung stellen können.
Ausstattung
- Riesiger Garten
- Große Terrasse im EG
- Balkone
- bis zu 2, 75 M Deckenhöhe
- Einbauküchen
. 6 vollmöblierte Wohnungen
- Tageslichtbäder
- Keller
- kurzfristiger Leerstand der möblierten Wohnungen auf Wunsch
- Aufteilung in WEG mgl. (Abgeschlossenheitsbescheinigung liegt bereits vor)
- Große Terrasse im EG
- Balkone
- bis zu 2, 75 M Deckenhöhe
- Einbauküchen
. 6 vollmöblierte Wohnungen
- Tageslichtbäder
- Keller
- kurzfristiger Leerstand der möblierten Wohnungen auf Wunsch
- Aufteilung in WEG mgl. (Abgeschlossenheitsbescheinigung liegt bereits vor)
Lage
Ginnheim:
Ginnheim liegt 5km nordwestlich der Innenstadt erhöt über dem Niddatal. Der Wohnstadtteil ist bekannt durch den Fernmeldeturm und den Sitz der Deutschen Bundesbank.
Die erhöht verlaufende Schnellstraße L 3004 durchschneidet den Stadtteil. Im Norden befinden sich Reste des alten Dorfes, das 1910 nach Frankfurt eingemeindet wurde. Die Siedlung Höhenblick geht auf die 20er Jahre zurück (Stadtbaurat Ernst May). Die Friedrich – Wilhelm – von – Steuben – Siedlung steht nach Räumung durch die US – Streitkräfte jetzt für den Wohnungsmarkt (Sozialwohnungen) zur Verfügung. Südlich der 3004 erstrecken sich ruhige Wohnsiedlungen der Zwischenkriegszeit. Im Westen liegt der Volkspark Niddatal, 1989 Schauplatz der Bundesgartenschau.
Verkehr: Über den Miquelknoten an der A 661 besteht Anschluss an die A 5. Die U-Bahn Linie 1 benötigt bis zur Hauptwache 21 Minuten, die Straßenbahnlinie 16 bis zum Hauptbahnhof 15 Minuten.
Ginnheim:
Ginnheim liegt 5km nordwestlich der Innenstadt erhöt über dem Niddatal. Der Wohnstadtteil ist bekannt durch den Fernmeldeturm und den Sitz der Deutschen Bundesbank.
Die erhöht verlaufende Schnellstraße L 3004 durchschneidet den Stadtteil. Im Norden befinden sich Reste des alten Dorfes, das 1910 nach Frankfurt eingemeindet wurde. Die Siedlung Höhenblick geht auf die 20er Jahre zurück (Stadtbaurat Ernst May). Die Friedrich – Wilhelm – von – Steuben – Siedlung steht nach Räumung durch die US – Streitkräfte jetzt für den Wohnungsmarkt (Sozialwohnungen) zur Verfügung. Südlich der 3004 erstrecken sich ruhige Wohnsiedlungen der Zwischenkriegszeit. Im Westen liegt der Volkspark Niddatal, 1989 Schauplatz der Bundesgartenschau.
Verkehr: Über den Miquelknoten an der A 661 besteht Anschluss an die A 5. Die U-Bahn Linie 1 benötigt bis zur Hauptwache 21 Minuten, die Straßenbahnlinie 16 bis zum Hauptbahnhof 15 Minuten.
Ginnheim:
Sonstige Angaben
Hinweise und nützliche Informationen:
1. Sämtliche Provisionsangaben verstehen sich inklusive der gesetzlichen Mehrwertsteuer von 19%. Die Provision ist vom Verkäufer, Käufer oder Gewerbemieter zu tragen.
2. Alle Daten stammen vom Eigentümer, Hausverwalter oder Vormieter, für die Richtigkeit übernehmen wir keine Haftung. Weitergabe an Dritte verpflichtet zur vollen Provisionszahlung.
3. Mit der Immobilienanfrage erklären sich Interessenten einverstanden, dass wir Sie wegen Objektangeboten telefonisch, schriftlich oder per E-Mail kontaktieren dürfen. Auch dürfen unsere Kooperationspartner in Sachen Immobilienangelegenheiten sie hierzu kontaktieren.
4. Sollte das Angebot nicht zu Ihrer Suche passen, finden Sie ggfls. Alternativangebot e auf unserer Homepage: www.mcm-immobilien.de
5. Aktuelle Informationen oder Neuankündigungen von Immobilienangebote finden Sie auch auf unsere Socialmedia Kanäle. Folgen Sie uns auch hier und bleiben Sie stets auf dem aktuellen Stand. INSTAGRAM: https://instagram.com/mcmimmobilien/ FACEBOOK: https://facebook.com/immo.mcm YouTupe: https://www.youtube.com/watch?v=b6nzaJKHPZ0&t=1s
6. Gerne können wir Ihnen auch ein Finanzierungsangebot für Ihre neue Immobilie erstellen. Sprechen Sie uns einfach an.
7. Sollte dieses Objekt nicht Ihren Vorstellungen entsprechen, können wir Sie gerne bei der Immobiliensuche unterstützen. Freuen uns hierzu auf Ihre Kontaktaufnahme.
8. Spielen Sie derzeit mit dem Gedanken Ihre Immobilie zu veräußern oder neu zu vermieten und möchten hierzu einen marktgerechten Preis erfahren, dann bieten wir Ihnen gerne, kostenfrei, unsere fach- und erfahrungsbezogene Immobilienbewertung an.
WICHTIGER HINWEIS ZUM WIDERRUFSRECHT:
Nach den EU-Verbraucherrechterichtlinien sind Makler seit dem 13.06.2014 dazu verpflichtet, ihre Kunden über ihr Widerrufsrecht bei Fernabsatzverträgen hinzuweisen. Ein Fernabsatzvertrag ist schon zustande gekommen, wenn Sie uns telefonisch oder per E-Mail bezüglich einer Immobilie kontaktieren.
Wir bitten daher um Ihr Verständnis, wenn Sie vor der Vereinbarung eines Besichtigungstermins bzw. vor Überlassung weiterer Informationen zur Immobilie, von uns eine E-Mail mit detaillierten Informationen bezüglich Ihres Widerrufsrechts bekommen. Erst danach können wir in vollem Umfang für Sie tätig werden. Diese Maßnahme dient dem Schutz der Verbraucher und wir hoffen, dass wir Sie - trotz des kleinen Mehraufwandes - Ihrer neuen Immobilie einen Schritt näher bringen können!
1. Sämtliche Provisionsangaben verstehen sich inklusive der gesetzlichen Mehrwertsteuer von 19%. Die Provision ist vom Verkäufer, Käufer oder Gewerbemieter zu tragen.
2. Alle Daten stammen vom Eigentümer, Hausverwalter oder Vormieter, für die Richtigkeit übernehmen wir keine Haftung. Weitergabe an Dritte verpflichtet zur vollen Provisionszahlung.
3. Mit der Immobilienanfrage erklären sich Interessenten einverstanden, dass wir Sie wegen Objektangeboten telefonisch, schriftlich oder per E-Mail kontaktieren dürfen. Auch dürfen unsere Kooperationspartner in Sachen Immobilienangelegenheiten sie hierzu kontaktieren.
4. Sollte das Angebot nicht zu Ihrer Suche passen, finden Sie ggfls. Alternativangebot e auf unserer Homepage: www.mcm-immobilien.de
5. Aktuelle Informationen oder Neuankündigungen von Immobilienangebote finden Sie auch auf unsere Socialmedia Kanäle. Folgen Sie uns auch hier und bleiben Sie stets auf dem aktuellen Stand. INSTAGRAM: https://instagram.com/mcmimmobilien/ FACEBOOK: https://facebook.com/immo.mcm YouTupe: https://www.youtube.com/watch?v=b6nzaJKHPZ0&t=1s
6. Gerne können wir Ihnen auch ein Finanzierungsangebot für Ihre neue Immobilie erstellen. Sprechen Sie uns einfach an.
7. Sollte dieses Objekt nicht Ihren Vorstellungen entsprechen, können wir Sie gerne bei der Immobiliensuche unterstützen. Freuen uns hierzu auf Ihre Kontaktaufnahme.
8. Spielen Sie derzeit mit dem Gedanken Ihre Immobilie zu veräußern oder neu zu vermieten und möchten hierzu einen marktgerechten Preis erfahren, dann bieten wir Ihnen gerne, kostenfrei, unsere fach- und erfahrungsbezogene Immobilienbewertung an.
WICHTIGER HINWEIS ZUM WIDERRUFSRECHT:
Nach den EU-Verbraucherrechterichtlinien sind Makler seit dem 13.06.2014 dazu verpflichtet, ihre Kunden über ihr Widerrufsrecht bei Fernabsatzverträgen hinzuweisen. Ein Fernabsatzvertrag ist schon zustande gekommen, wenn Sie uns telefonisch oder per E-Mail bezüglich einer Immobilie kontaktieren.
Wir bitten daher um Ihr Verständnis, wenn Sie vor der Vereinbarung eines Besichtigungstermins bzw. vor Überlassung weiterer Informationen zur Immobilie, von uns eine E-Mail mit detaillierten Informationen bezüglich Ihres Widerrufsrechts bekommen. Erst danach können wir in vollem Umfang für Sie tätig werden. Diese Maßnahme dient dem Schutz der Verbraucher und wir hoffen, dass wir Sie - trotz des kleinen Mehraufwandes - Ihrer neuen Immobilie einen Schritt näher bringen können!







