Ihr Ansprechpartner
#VERKAUFT# Gartenwohnung im liebevoll sanierten Stilaltbau im schönen Nordend-West
60318 Frankfurt am Main
243509_1
Objekt-Nr.:
243509_1Provision:
2,98 % inkl. gesetzl. MwSt. vom KaufpreisKaufpreis:
749.000,00 €Nebenkosten:
Objektbeschreibung
Erleben Sie Wohnkultur auf höchstem Niveau im Frankfurter Nordend-West.
Hier erwartet Sie eine exklusive Erdgeschosswohnung in einem charmanten Altbau-Stadthaus, das historische Eleganz und modernen Wohnkomfort perfekt miteinander verbindet. Dieses repräsentative 5-Familienhaus bietet auf seinen vier Etagen eine unvergleichliche Wohnqualität, die sowohl durch ihre sorgfältige und stilechte Sanierung als auch durch ihre hervorragende Ausstattung besticht.
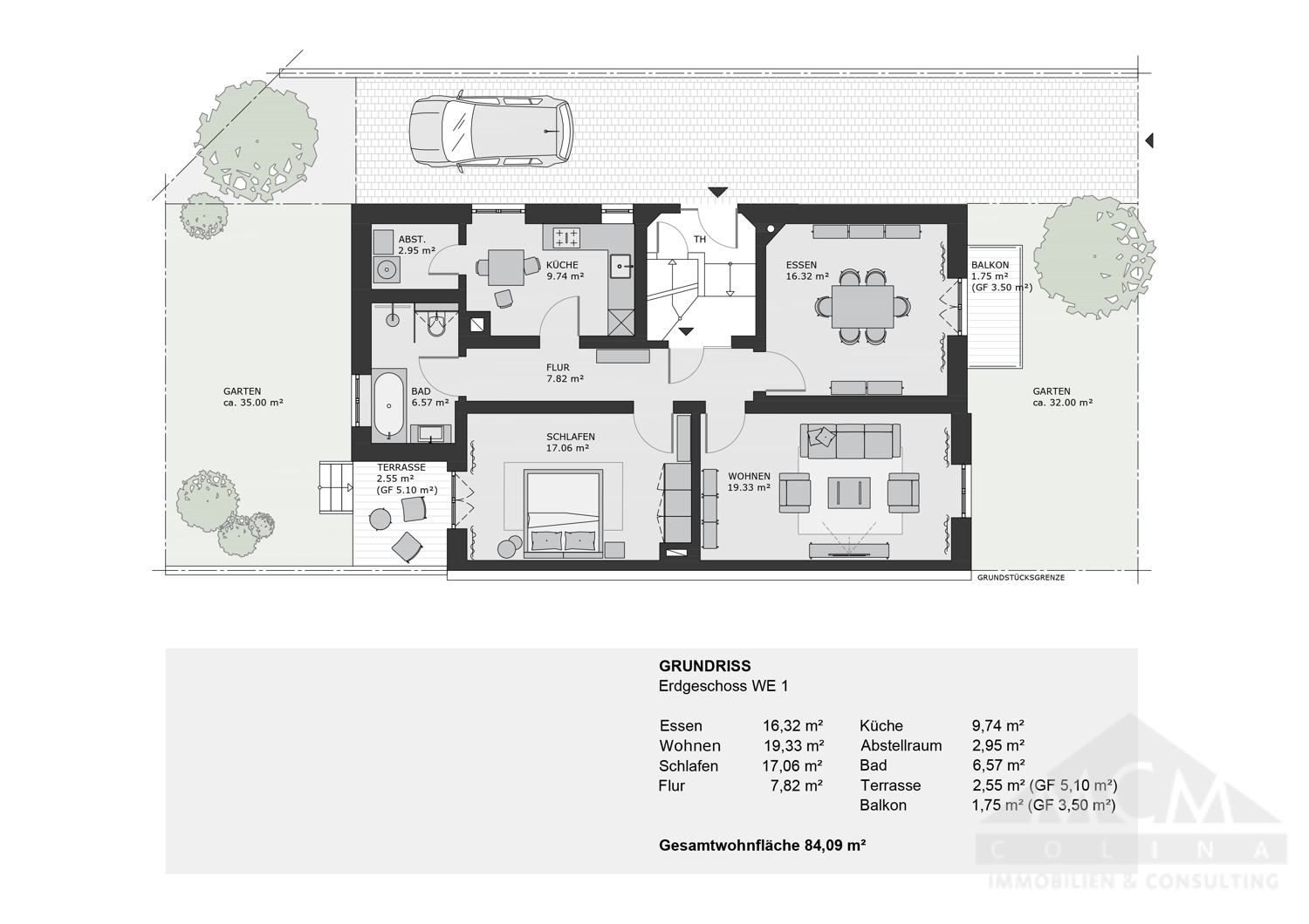
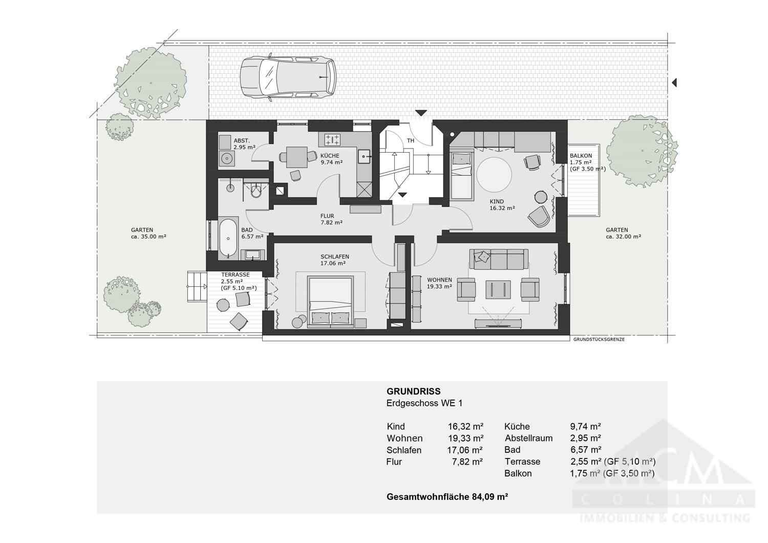
Diese besondere Erdgeschosswohnung erstreckt sich über großzügige ca. 84 m² und bietet drei Zimmer mit einer beeindruckenden Deckenhöhe von ca. 3 Metern. Diese Höhe verleiht den Räumen eine luftige und offene Atmosphäre, die zum Wohlfühlen einlädt. Der praktische Grundriss ermöglicht es, dass alle Zimmer direkt vom Flur aus zugänglich sind und für eine effiziente und praktische Raumaufteilung sorgen.
Ein absolutes Highlight dieser Wohnung sind die zwei privaten Gärten. Der liebevoll gestaltete Vorgarten bietet einen einladenden Platz zum Verweilen, während der ruhig gelegene rückwärtige Garten eine Oase der Entspannung darstellt. Hier können Sie die Natur mitten in der Stadt genießen und in Ihrem eigenen kleinen Paradies zur Ruhe kommen.
Die Ausstattung der Wohnung lässt keine Wünsche offen. Hochwertiger Parkettfußboden in allen Wohnräumen strahlt Wärme und Eleganz aus, während die edlen Fliesen in den tageslichtdurchfluteten Badezimmern für einen Hauch von Luxus sorgen. Diese sind sowohl mit einer Badewanne und einer Duschkabine ausgestattet. Die neuen stilechten mehrfach verglasten Holzfenster bieten hervorragenden Schall- und Wärmeschutz und tragen zu einem angenehmen Wohnklima bei. Restaurierte Kassettentüren und Stuckdecken unterstreichen den historischen Charme der Wohnung und schaffen ein harmonisches Gesamtbild.
Moderne Technik und Komfort finden Sie ebenfalls in dieser Wohnung. Die komplett neue Elektroinstallation und Heizungsanlage mit effizienter Wärmepumpe sorgen für zeitgemäßen Wohnkomfort, während die elektrischen Rollläden zusätzlichen Schutz und Bequemlichkeit bieten. Die Küche verfügt über eine separate Abstellkammer mit einem Wasseranschluss für die Waschmaschine.
Auch die Fassade und die Außenbereiche des Hauses sind liebevoll und im klassischen Altbaustil gehalten. Dieser zeitlose Charme setzt sich in den gemeinschaftlichen Bereichen fort und schafft eine einladende Atmosphäre, die den besonderen Charakter des Stilaltbaus unterstreicht.
Diese einzigartige Erdgeschosswohnung vereint historischen Flair mit modernster Ausstattung und bietet Ihnen ein Zuhause, in dem Sie sich rundum wohlfühlen werden.
Vereinbaren Sie noch heute einen Besichtigungstermin und lassen Sie sich von der Exklusivität und dem besonderen Charme dieser Immobilie begeistern.
Hier erwartet Sie eine exklusive Erdgeschosswohnung in einem charmanten Altbau-Stadthaus, das historische Eleganz und modernen Wohnkomfort perfekt miteinander verbindet. Dieses repräsentative 5-Familienhaus bietet auf seinen vier Etagen eine unvergleichliche Wohnqualität, die sowohl durch ihre sorgfältige und stilechte Sanierung als auch durch ihre hervorragende Ausstattung besticht.
Diese besondere Erdgeschosswohnung erstreckt sich über großzügige ca. 84 m² und bietet drei Zimmer mit einer beeindruckenden Deckenhöhe von ca. 3 Metern. Diese Höhe verleiht den Räumen eine luftige und offene Atmosphäre, die zum Wohlfühlen einlädt. Der praktische Grundriss ermöglicht es, dass alle Zimmer direkt vom Flur aus zugänglich sind und für eine effiziente und praktische Raumaufteilung sorgen.
Ein absolutes Highlight dieser Wohnung sind die zwei privaten Gärten. Der liebevoll gestaltete Vorgarten bietet einen einladenden Platz zum Verweilen, während der ruhig gelegene rückwärtige Garten eine Oase der Entspannung darstellt. Hier können Sie die Natur mitten in der Stadt genießen und in Ihrem eigenen kleinen Paradies zur Ruhe kommen.
Die Ausstattung der Wohnung lässt keine Wünsche offen. Hochwertiger Parkettfußboden in allen Wohnräumen strahlt Wärme und Eleganz aus, während die edlen Fliesen in den tageslichtdurchfluteten Badezimmern für einen Hauch von Luxus sorgen. Diese sind sowohl mit einer Badewanne und einer Duschkabine ausgestattet. Die neuen stilechten mehrfach verglasten Holzfenster bieten hervorragenden Schall- und Wärmeschutz und tragen zu einem angenehmen Wohnklima bei. Restaurierte Kassettentüren und Stuckdecken unterstreichen den historischen Charme der Wohnung und schaffen ein harmonisches Gesamtbild.
Moderne Technik und Komfort finden Sie ebenfalls in dieser Wohnung. Die komplett neue Elektroinstallation und Heizungsanlage mit effizienter Wärmepumpe sorgen für zeitgemäßen Wohnkomfort, während die elektrischen Rollläden zusätzlichen Schutz und Bequemlichkeit bieten. Die Küche verfügt über eine separate Abstellkammer mit einem Wasseranschluss für die Waschmaschine.
Auch die Fassade und die Außenbereiche des Hauses sind liebevoll und im klassischen Altbaustil gehalten. Dieser zeitlose Charme setzt sich in den gemeinschaftlichen Bereichen fort und schafft eine einladende Atmosphäre, die den besonderen Charakter des Stilaltbaus unterstreicht.
Diese einzigartige Erdgeschosswohnung vereint historischen Flair mit modernster Ausstattung und bietet Ihnen ein Zuhause, in dem Sie sich rundum wohlfühlen werden.
Vereinbaren Sie noch heute einen Besichtigungstermin und lassen Sie sich von der Exklusivität und dem besonderen Charme dieser Immobilie begeistern.
Ausstattung
• Neue Holzfenster im Altbaustil mit Mehrfachverglasung
•Neuer hochwertiger Parkett-Bodenbelag
•Hochwertiger Fliesenbelag im Sanitärbereich
•Wandflächen komplett neu verputzt, Deckenflächen neu gespachtelt und mit Malervlies versehen
•Neue Elektroinstallation inkl. CAT-7 Verkabelung, Video-Sprechanlage
•Neue Sanitärleitungen (Abflussleitungen, Wasserzuleitungen) in den Wohnungen
•Hochwertige Sanitärobjekte und Armaturen
•Neue Heizungsanlage (Wärmepumpe) mit neuen Leitungen und Heizkörpern
•Restaurierte Kassettentüren und Stuckdecken
•Optional: Flügeltür im Wohnbereich
•Kfz-Stellplatz: Optional für € 35.000,-
•Wohnungseingangstüren mit stilgerechter Ornamentverglasung
•Neue Balkone mit originalgetreuen Metallgeländern
•Eigener Garten nach vorne und nach hinten heraus
•Renoviertes Treppenhaus
•Stilgerechte Renovierung der Fassade
•Komplette Erneuerung der Dacheindeckung, Dachrinnen, Regenfallrohre und Anschlüsse
•Außenanlage mit neuen Natursteinpflaster und neue Rasenflächen mit Bepflanzungen
•Schmiedeeiserne Zaunumfassung und Eingangstor im historischen Stil
•Neuer hochwertiger Parkett-Bodenbelag
•Hochwertiger Fliesenbelag im Sanitärbereich
•Wandflächen komplett neu verputzt, Deckenflächen neu gespachtelt und mit Malervlies versehen
•Neue Elektroinstallation inkl. CAT-7 Verkabelung, Video-Sprechanlage
•Neue Sanitärleitungen (Abflussleitungen, Wasserzuleitungen) in den Wohnungen
•Hochwertige Sanitärobjekte und Armaturen
•Neue Heizungsanlage (Wärmepumpe) mit neuen Leitungen und Heizkörpern
•Restaurierte Kassettentüren und Stuckdecken
•Optional: Flügeltür im Wohnbereich
•Kfz-Stellplatz: Optional für € 35.000,-
•Wohnungseingangstüren mit stilgerechter Ornamentverglasung
•Neue Balkone mit originalgetreuen Metallgeländern
•Eigener Garten nach vorne und nach hinten heraus
•Renoviertes Treppenhaus
•Stilgerechte Renovierung der Fassade
•Komplette Erneuerung der Dacheindeckung, Dachrinnen, Regenfallrohre und Anschlüsse
•Außenanlage mit neuen Natursteinpflaster und neue Rasenflächen mit Bepflanzungen
•Schmiedeeiserne Zaunumfassung und Eingangstor im historischen Stil
Lage
Nordend-West:
Das Nordend ist ein lebendiger Stadtteil, der vor allem bei jungen Leuten, Künstlern und Intellektuellen beliebt ist. Es erhält besonderes Flair durch ihre innovative und einzigartige Geschäfts- und Kneipenkultur. Diese findet sich z.B. am Oeder Weg und der Berger Straße, daneben zählen Eckenheimer-, Eschersheimer- und Friedberger-Landstraße zu den "Schlagadern" des Quartiers, die ebenfalls einige Hotspots anbieten. Ein grünes Kleinod ist der Holzhausenpark der in wenigen Minuten zu erreichen ist, aber auch der großflächigen Günthersburgpark ist zu Fuß erreichbar. Das Nordend zählt beim Büromarkt noch zur City, hier haben sich vor allem Beratungsunternehmen niedergelassen.
Verkehr: Über die Miquelallee/ A66 erreicht man schnell das Nordwestkreuz Frankfurt (6 km). Die U-Bahn-Linien U-5 ist in wenigen Minuten zu Fuß erreichbar. Mit ihr erreichen Sie die Stationen in wenigen Minuten bis zur Haupt- bzw. Konstablerwache oder Hauptbahnhof ebenfalls in wenigen Minuten. Ebenso ist die Straßenbahnlinie 12 und die Buslinie 30 und 36 gut erreichbar.
Das Nordend ist ein lebendiger Stadtteil, der vor allem bei jungen Leuten, Künstlern und Intellektuellen beliebt ist. Es erhält besonderes Flair durch ihre innovative und einzigartige Geschäfts- und Kneipenkultur. Diese findet sich z.B. am Oeder Weg und der Berger Straße, daneben zählen Eckenheimer-, Eschersheimer- und Friedberger-Landstraße zu den "Schlagadern" des Quartiers, die ebenfalls einige Hotspots anbieten. Ein grünes Kleinod ist der Holzhausenpark der in wenigen Minuten zu erreichen ist, aber auch der großflächigen Günthersburgpark ist zu Fuß erreichbar. Das Nordend zählt beim Büromarkt noch zur City, hier haben sich vor allem Beratungsunternehmen niedergelassen.
Verkehr: Über die Miquelallee/ A66 erreicht man schnell das Nordwestkreuz Frankfurt (6 km). Die U-Bahn-Linien U-5 ist in wenigen Minuten zu Fuß erreichbar. Mit ihr erreichen Sie die Stationen in wenigen Minuten bis zur Haupt- bzw. Konstablerwache oder Hauptbahnhof ebenfalls in wenigen Minuten. Ebenso ist die Straßenbahnlinie 12 und die Buslinie 30 und 36 gut erreichbar.
Sonstige Angaben
Hinweise und nützliche Informationen:
1. Sämtliche Provisionsangaben verstehen sich inklusive der gesetzlichen Mehrwertsteuer von 19%. Die Provision ist vom Verkäufer, Käufer oder Gewerbemieter zu tragen.
2. Alle Daten stammen vom Eigentümer, Hausverwalter oder Vormieter, für die Richtigkeit übernehmen wir keine Haftung. Weitergabe an Dritte verpflichtet zur vollen Provisionszahlung.
3. Mit der Immobilienanfrage erklären sich Interessenten einverstanden, dass wir Sie wegen Objektangeboten telefonisch, schriftlich oder per E-Mail kontaktieren dürfen. Auch dürfen unsere Kooperationspartner in Sachen Immobilienangelegenheiten sie hierzu kontaktieren.
4. Sollte das Angebot nicht zu Ihrer Suche passen, finden Sie ggfls. Alternativangebot e auf unserer Homepage: www.mcm-immobilien.de
5. Aktuelle Informationen oder Neuankündigungen von Immobilienangebote finden Sie auch auf unsere Socialmedia Kanäle. Folgen Sie uns auch hier und bleiben Sie stets auf dem aktuellen Stand. INSTAGRAM: https://instagram.com/mcmimmobilien/ FACEBOOK: https://facebook.com/immo.mcm YouTupe: https://www.youtube.com/watch?v=b6nzaJKHPZ0&t=1s
6. Gerne können wir Ihnen auch ein Finanzierungsangebot für Ihre neue Immobilie erstellen. Sprechen Sie uns einfach an.
7. Sollte dieses Objekt nicht Ihren Vorstellungen entsprechen, können wir Sie gerne bei der Immobiliensuche unterstützen. Freuen uns hierzu auf Ihre Kontaktaufnahme.
8. Spielen Sie derzeit mit dem Gedanken Ihre Immobilie zu veräußern oder neu zu vermieten und möchten hierzu einen marktgerechten Preis erfahren, dann bieten wir Ihnen gerne, kostenfrei, unsere fach- und erfahrungsbezogene Immobilienbewertung an.
WICHTIGER HINWEIS ZUM WIDERRUFSRECHT:
Nach den EU-Verbraucherrechterichtlinien sind Makler seit dem 13.06.2014 dazu verpflichtet, ihre Kunden über ihr Widerrufsrecht bei Fernabsatzverträgen hinzuweisen. Ein Fernabsatzvertrag ist schon zustande gekommen, wenn Sie uns telefonisch oder per E-Mail bezüglich einer Immobilie kontaktieren.
Wir bitten daher um Ihr Verständnis, wenn Sie vor der Vereinbarung eines Besichtigungstermins bzw. vor Überlassung weiterer Informationen zur Immobilie, von uns eine E-Mail mit detaillierten Informationen bezüglich Ihres Widerrufsrechts bekommen. Erst danach können wir in vollem Umfang für Sie tätig werden. Diese Maßnahme dient dem Schutz der Verbraucher und wir hoffen, dass wir Sie - trotz des kleinen Mehraufwandes - Ihrer neuen Immobilie einen Schritt näher bringen können!
1. Sämtliche Provisionsangaben verstehen sich inklusive der gesetzlichen Mehrwertsteuer von 19%. Die Provision ist vom Verkäufer, Käufer oder Gewerbemieter zu tragen.
2. Alle Daten stammen vom Eigentümer, Hausverwalter oder Vormieter, für die Richtigkeit übernehmen wir keine Haftung. Weitergabe an Dritte verpflichtet zur vollen Provisionszahlung.
3. Mit der Immobilienanfrage erklären sich Interessenten einverstanden, dass wir Sie wegen Objektangeboten telefonisch, schriftlich oder per E-Mail kontaktieren dürfen. Auch dürfen unsere Kooperationspartner in Sachen Immobilienangelegenheiten sie hierzu kontaktieren.
4. Sollte das Angebot nicht zu Ihrer Suche passen, finden Sie ggfls. Alternativangebot e auf unserer Homepage: www.mcm-immobilien.de
5. Aktuelle Informationen oder Neuankündigungen von Immobilienangebote finden Sie auch auf unsere Socialmedia Kanäle. Folgen Sie uns auch hier und bleiben Sie stets auf dem aktuellen Stand. INSTAGRAM: https://instagram.com/mcmimmobilien/ FACEBOOK: https://facebook.com/immo.mcm YouTupe: https://www.youtube.com/watch?v=b6nzaJKHPZ0&t=1s
6. Gerne können wir Ihnen auch ein Finanzierungsangebot für Ihre neue Immobilie erstellen. Sprechen Sie uns einfach an.
7. Sollte dieses Objekt nicht Ihren Vorstellungen entsprechen, können wir Sie gerne bei der Immobiliensuche unterstützen. Freuen uns hierzu auf Ihre Kontaktaufnahme.
8. Spielen Sie derzeit mit dem Gedanken Ihre Immobilie zu veräußern oder neu zu vermieten und möchten hierzu einen marktgerechten Preis erfahren, dann bieten wir Ihnen gerne, kostenfrei, unsere fach- und erfahrungsbezogene Immobilienbewertung an.
WICHTIGER HINWEIS ZUM WIDERRUFSRECHT:
Nach den EU-Verbraucherrechterichtlinien sind Makler seit dem 13.06.2014 dazu verpflichtet, ihre Kunden über ihr Widerrufsrecht bei Fernabsatzverträgen hinzuweisen. Ein Fernabsatzvertrag ist schon zustande gekommen, wenn Sie uns telefonisch oder per E-Mail bezüglich einer Immobilie kontaktieren.
Wir bitten daher um Ihr Verständnis, wenn Sie vor der Vereinbarung eines Besichtigungstermins bzw. vor Überlassung weiterer Informationen zur Immobilie, von uns eine E-Mail mit detaillierten Informationen bezüglich Ihres Widerrufsrechts bekommen. Erst danach können wir in vollem Umfang für Sie tätig werden. Diese Maßnahme dient dem Schutz der Verbraucher und wir hoffen, dass wir Sie - trotz des kleinen Mehraufwandes - Ihrer neuen Immobilie einen Schritt näher bringen können!











