Ihr Ansprechpartner
#VERMITTELT# Seltenes Stilaltbaujuwel mit perfekten Grundrissen in top Nordendlage
60318 Frankfurt am Main
243512
Objekt-Nr.:
243512Provision:
5,95 % inkl. gesetzl. MwSt. vom KaufpreisKaufpreis:
2.448.000,00 €Nebenkosten:
Objektbeschreibung
Wir bieten Ihnen ein seltenes Stilaltbaujuwel mit extrem viel Potenzial.
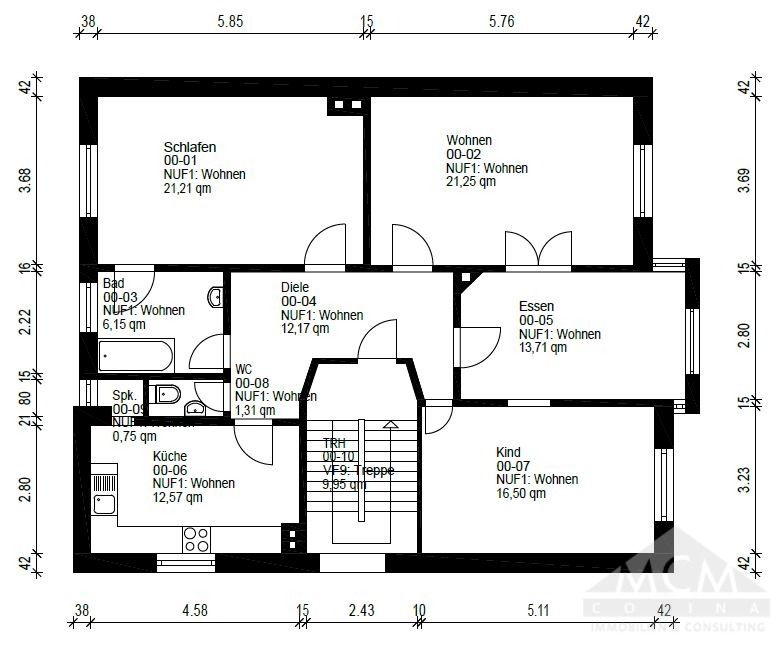
Es handelt sich hier um ein 5-Familieneckhaus mit jeweiligen Etagenwohnungen. Alle Wohnetagen verfügen über optimale Grundrisse. Alle Räume sind sternförmig über die große Diele erreichbar.
Die Wohneinheiten verfügen über großzügige Räume, hohe Decken (ca. 3,50 M.), echte Stuckelemente, originale Kassettentüren sowie Erker, ein Balkon, frz. Balkone uvm.
Das Haus verfügt über einen schönen Vorgarten, der über die Erdgeschosswohnung erschlossen werden kann. Zudem steht ein kleiner Grünstreifen im hinteren Teil des Gebäudes zur Verfügung.
Gegebenenfalls können die französischen Balkone, zukünftig mit ein Balkonanbau effizienter genutzt werden.
Die Wohnungen im Erdgeschosswohnung, im 3. Obergeschoss und die DG-Wohnung stehen aktuell frei.
Darüber liegt ein großzügiger Dachspeicher, der gegebenenfalls in Zukunft zusätzlich Ausbaupotenzial bietet.
Das Haus wird über Gas-Etagenheizungen beheizt. Die im EG und im 4. OG sind komplett neu eingebaut worden, die im 1. OG wurde vor 2 Jahren und die im 2. OG vor 8 Jahren eingebaut. In der 3. Etage muss noch eine eingebaut werden. Die Fenster sind aus Kunststoff und doppelverglast, überwiegend aus Ende der 90er Jahre.
Die Wohnungen im EG und im 3. OG wurden komplett entkernt. Hier wurde die komplette Elektrik inkl. Cat-7 erneuert bzw. wird noch bis zur Endmontage fertiggestellt. In der EG-Wohnung wurde zudem eine neue Gasetagenheizung mit neuen Leitungen verlegt.
Unserer Meinung nach sind noch Investitionen von € 250.000.- bis € 350.000,- nötig für die Fertigstellung der Wohnungen im EG und 3. OG, die Modernisierung der 4. ten Wohnetage und kosmetische Renovierungen, wie Treppenhaus etc.
Dies sollten Sie in Ihrer Kalkulation bitte mitbedenken.
Wohnflächenaufstellung:
EG: 4-Zimmer ca. 105,62 m² - mieterfrei
1.OG: 4-Zimmer ca. 105,62 m² - vermietet (ca 1.525,- mt.)
2.OG: 4-Zimmer ca. 105,62 m² - vermietet (ca. 1.225,- mtl. )
3.OG: 4-Zimmer ca. 105,77 m² - mieterfrei
4.OG: 4-Zimmer ca. 87,84 m² - mieterfrei
Es handelt sich hier um ein 5-Familieneckhaus mit jeweiligen Etagenwohnungen. Alle Wohnetagen verfügen über optimale Grundrisse. Alle Räume sind sternförmig über die große Diele erreichbar.
Die Wohneinheiten verfügen über großzügige Räume, hohe Decken (ca. 3,50 M.), echte Stuckelemente, originale Kassettentüren sowie Erker, ein Balkon, frz. Balkone uvm.
Das Haus verfügt über einen schönen Vorgarten, der über die Erdgeschosswohnung erschlossen werden kann. Zudem steht ein kleiner Grünstreifen im hinteren Teil des Gebäudes zur Verfügung.
Gegebenenfalls können die französischen Balkone, zukünftig mit ein Balkonanbau effizienter genutzt werden.
Die Wohnungen im Erdgeschosswohnung, im 3. Obergeschoss und die DG-Wohnung stehen aktuell frei.
Darüber liegt ein großzügiger Dachspeicher, der gegebenenfalls in Zukunft zusätzlich Ausbaupotenzial bietet.
Das Haus wird über Gas-Etagenheizungen beheizt. Die im EG und im 4. OG sind komplett neu eingebaut worden, die im 1. OG wurde vor 2 Jahren und die im 2. OG vor 8 Jahren eingebaut. In der 3. Etage muss noch eine eingebaut werden. Die Fenster sind aus Kunststoff und doppelverglast, überwiegend aus Ende der 90er Jahre.
Die Wohnungen im EG und im 3. OG wurden komplett entkernt. Hier wurde die komplette Elektrik inkl. Cat-7 erneuert bzw. wird noch bis zur Endmontage fertiggestellt. In der EG-Wohnung wurde zudem eine neue Gasetagenheizung mit neuen Leitungen verlegt.
Unserer Meinung nach sind noch Investitionen von € 250.000.- bis € 350.000,- nötig für die Fertigstellung der Wohnungen im EG und 3. OG, die Modernisierung der 4. ten Wohnetage und kosmetische Renovierungen, wie Treppenhaus etc.
Dies sollten Sie in Ihrer Kalkulation bitte mitbedenken.
Wohnflächenaufstellung:
EG: 4-Zimmer ca. 105,62 m² - mieterfrei
1.OG: 4-Zimmer ca. 105,62 m² - vermietet (ca 1.525,- mt.)
2.OG: 4-Zimmer ca. 105,62 m² - vermietet (ca. 1.225,- mtl. )
3.OG: 4-Zimmer ca. 105,77 m² - mieterfrei
4.OG: 4-Zimmer ca. 87,84 m² - mieterfrei
Ausstattung
- 3 freie Wohnungen
- schöne und gepflegte Stilaltbaufassade
- gut erhaltenes historisches Holztreppenhaus
- top geschnittene Wohneinheiten
- _Vorgarten und rückwärtige Gartennutzung für die Erdgeschosswohnung
- 1. bis 3. OG französische Balkone nach hinten raus
- 3. OG kleiner Balkon nach vorne raus
- Holzdielenböden
- echte Stuckelemente
- Kassettentüren
- Tgl. Bäder in allen Wohneinheiten
- separates WC in allen Wohneinheiten
- schöne und gepflegte Stilaltbaufassade
- gut erhaltenes historisches Holztreppenhaus
- top geschnittene Wohneinheiten
- _Vorgarten und rückwärtige Gartennutzung für die Erdgeschosswohnung
- 1. bis 3. OG französische Balkone nach hinten raus
- 3. OG kleiner Balkon nach vorne raus
- Holzdielenböden
- echte Stuckelemente
- Kassettentüren
- Tgl. Bäder in allen Wohneinheiten
- separates WC in allen Wohneinheiten
Lage
Das Nordend reicht vom Anlagenring bis zur Friedberger Warte. Das gründerzeitliche Wohnviertel zwischen Eschersheimer Landstraße und Sandweg gehört im Westteil, rund um das Holzhausenschlösschen zu den
Top - Wohnlagen Frankfurts.
Das Nordend ist ein lebendiger Stadtteil, der vor allem bei jungen Leuten, Künstlern und Intellektuellen beliebt ist. Es erhält besonderes Flair durch eine "alternative" Geschäfts- und Kneipenkultur. Diese findet sich z.B. am Oeder Weg und der Berger Straße, daneben zählen Eckenheimer, Eschersheimer und Friedberger Landstraße zu den "Schlagadern" des Quartiers. Ein grünes Kleinod ist der Holzhausenpark. Das Nordend zählt beim Büromarkt noch zur City, hier haben sich vor allem Beratungsunternehmen niedergelassen.
Verkehr: Über die Miquelallee/ A66 erreicht man schnell das Nordwestkreuz Frankfurt (6 km). Die U-Bahn-Linien 1, 2, 3, 4 und 5 fahren in wenigen Minuten bis zur Haupt- bzw. Konstablerwache, ebenso die Straßenbahnlinie 12 und die Buslinie 30 und 36.
Top - Wohnlagen Frankfurts.
Das Nordend ist ein lebendiger Stadtteil, der vor allem bei jungen Leuten, Künstlern und Intellektuellen beliebt ist. Es erhält besonderes Flair durch eine "alternative" Geschäfts- und Kneipenkultur. Diese findet sich z.B. am Oeder Weg und der Berger Straße, daneben zählen Eckenheimer, Eschersheimer und Friedberger Landstraße zu den "Schlagadern" des Quartiers. Ein grünes Kleinod ist der Holzhausenpark. Das Nordend zählt beim Büromarkt noch zur City, hier haben sich vor allem Beratungsunternehmen niedergelassen.
Verkehr: Über die Miquelallee/ A66 erreicht man schnell das Nordwestkreuz Frankfurt (6 km). Die U-Bahn-Linien 1, 2, 3, 4 und 5 fahren in wenigen Minuten bis zur Haupt- bzw. Konstablerwache, ebenso die Straßenbahnlinie 12 und die Buslinie 30 und 36.
Sonstige Angaben
Hinweise und nützliche Informationen:
1. Sämtliche Provisionsangaben verstehen sich inklusive der gesetzlichen Mehrwertsteuer von 19%. Die Provision ist vom Verkäufer, Käufer oder Gewerbemieter zu tragen.
2. Alle Daten stammen vom Eigentümer, Hausverwalter oder Vormieter, für die Richtigkeit übernehmen wir keine Haftung. Weitergabe an Dritte verpflichtet zur vollen Provisionszahlung.
3. Mit der Immobilienanfrage erklären sich Interessenten einverstanden, dass wir Sie wegen Objektangeboten telefonisch, schriftlich oder per E-Mail kontaktieren dürfen. Auch dürfen unsere Kooperationspartner in Sachen Immobilienangelegenheiten sie hierzu kontaktieren.
4. Sollte das Angebot nicht zu Ihrer Suche passen, finden Sie ggfls. Alternativangebot e auf unserer Homepage: www.mcm-immobilien.de
5. Aktuelle Informationen oder Neuankündigungen von Immobilienangebote finden Sie auch auf unsere Socialmedia Kanäle. Folgen Sie uns auch hier und bleiben Sie stets auf dem aktuellen Stand. INSTAGRAM: https://instagram.com/mcmimmobilien/ FACEBOOK: https://facebook.com/immo.mcm YouTupe: https://www.youtube.com/watch?v=b6nzaJKHPZ0&t=1s
6. Gerne können wir Ihnen auch ein Finanzierungsangebot für Ihre neue Immobilie erstellen. Sprechen Sie uns einfach an.
7. Sollte dieses Objekt nicht Ihren Vorstellungen entsprechen, können wir Sie gerne bei der Immobiliensuche unterstützen. Freuen uns hierzu auf Ihre Kontaktaufnahme.
8. Spielen Sie derzeit mit dem Gedanken Ihre Immobilie zu veräußern oder neu zu vermieten und möchten hierzu einen marktgerechten Preis erfahren, dann bieten wir Ihnen gerne, kostenfrei, unsere fach- und erfahrungsbezogene Immobilienbewertung an.
WICHTIGER HINWEIS ZUM WIDERRUFSRECHT:
Nach den EU-Verbraucherrechterichtlinien sind Makler seit dem 13.06.2014 dazu verpflichtet, ihre Kunden über ihr Widerrufsrecht bei Fernabsatzverträgen hinzuweisen. Ein Fernabsatzvertrag ist schon zustande gekommen, wenn Sie uns telefonisch oder per E-Mail bezüglich einer Immobilie kontaktieren.
Wir bitten daher um Ihr Verständnis, wenn Sie vor der Vereinbarung eines Besichtigungstermins bzw. vor Überlassung weiterer Informationen zur Immobilie, von uns eine E-Mail mit detaillierten Informationen bezüglich Ihres Widerrufsrechts bekommen. Erst danach können wir in vollem Umfang für Sie tätig werden. Diese Maßnahme dient dem Schutz der Verbraucher und wir hoffen, dass wir Sie - trotz des kleinen Mehraufwandes - Ihrer neuen Immobilie einen Schritt näher bringen können!
1. Sämtliche Provisionsangaben verstehen sich inklusive der gesetzlichen Mehrwertsteuer von 19%. Die Provision ist vom Verkäufer, Käufer oder Gewerbemieter zu tragen.
2. Alle Daten stammen vom Eigentümer, Hausverwalter oder Vormieter, für die Richtigkeit übernehmen wir keine Haftung. Weitergabe an Dritte verpflichtet zur vollen Provisionszahlung.
3. Mit der Immobilienanfrage erklären sich Interessenten einverstanden, dass wir Sie wegen Objektangeboten telefonisch, schriftlich oder per E-Mail kontaktieren dürfen. Auch dürfen unsere Kooperationspartner in Sachen Immobilienangelegenheiten sie hierzu kontaktieren.
4. Sollte das Angebot nicht zu Ihrer Suche passen, finden Sie ggfls. Alternativangebot e auf unserer Homepage: www.mcm-immobilien.de
5. Aktuelle Informationen oder Neuankündigungen von Immobilienangebote finden Sie auch auf unsere Socialmedia Kanäle. Folgen Sie uns auch hier und bleiben Sie stets auf dem aktuellen Stand. INSTAGRAM: https://instagram.com/mcmimmobilien/ FACEBOOK: https://facebook.com/immo.mcm YouTupe: https://www.youtube.com/watch?v=b6nzaJKHPZ0&t=1s
6. Gerne können wir Ihnen auch ein Finanzierungsangebot für Ihre neue Immobilie erstellen. Sprechen Sie uns einfach an.
7. Sollte dieses Objekt nicht Ihren Vorstellungen entsprechen, können wir Sie gerne bei der Immobiliensuche unterstützen. Freuen uns hierzu auf Ihre Kontaktaufnahme.
8. Spielen Sie derzeit mit dem Gedanken Ihre Immobilie zu veräußern oder neu zu vermieten und möchten hierzu einen marktgerechten Preis erfahren, dann bieten wir Ihnen gerne, kostenfrei, unsere fach- und erfahrungsbezogene Immobilienbewertung an.
WICHTIGER HINWEIS ZUM WIDERRUFSRECHT:
Nach den EU-Verbraucherrechterichtlinien sind Makler seit dem 13.06.2014 dazu verpflichtet, ihre Kunden über ihr Widerrufsrecht bei Fernabsatzverträgen hinzuweisen. Ein Fernabsatzvertrag ist schon zustande gekommen, wenn Sie uns telefonisch oder per E-Mail bezüglich einer Immobilie kontaktieren.
Wir bitten daher um Ihr Verständnis, wenn Sie vor der Vereinbarung eines Besichtigungstermins bzw. vor Überlassung weiterer Informationen zur Immobilie, von uns eine E-Mail mit detaillierten Informationen bezüglich Ihres Widerrufsrechts bekommen. Erst danach können wir in vollem Umfang für Sie tätig werden. Diese Maßnahme dient dem Schutz der Verbraucher und wir hoffen, dass wir Sie - trotz des kleinen Mehraufwandes - Ihrer neuen Immobilie einen Schritt näher bringen können!









