Ihr Ansprechpartner
Penthouse der Extraklasse mit Skyline- und Feldbergblick
60435 Frankfurt am Main
253847
Objekt-Nr.:
253847Provision:
3,57 % inkl. gesetzl. MwSt. vom protokollierten KaufpreisKaufpreis:
1.585.000,00 €Nebenkosten:
Objektbeschreibung
Penthouse der Extraklasse mit Feldbergblick und Frankfurter Skyline
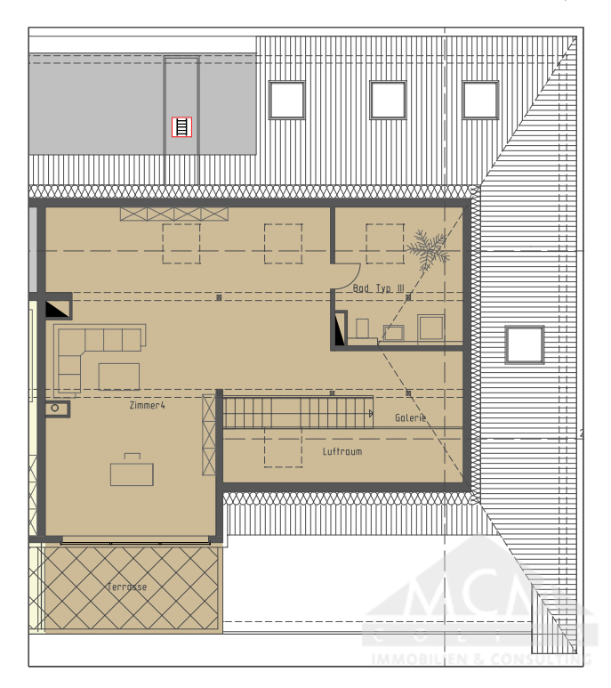
Diese außergewöhnliche Penthouse-Wohnung begeistert durch ihre Großzügigkeit, hochwertige Ausstattung und beeindruckende Ausblicke. Auf zwei Etagen erstrecken sich ca. 293 m² Wohnfläche, die höchsten Wohnansprüchen gerecht werden und keine Wünsche offenlassen.
Mit insgesamt fünf Zimmern, die sich bei Bedarf auf bis zu sieben Räume erweitern lassen, bietet das Penthouse vielseitige Nutzungsmöglichkeiten – ideal für Familien, Paare mit Platzbedarf oder Wohnen und Arbeiten unter einem Dach.
Das Herzstück der Wohnung bildet der offene Wohn-, Ess- und Küchenbereich, der durch seine Großzügigkeit und helle Atmosphäre besticht. Hier verschmelzen Komfort und Design zu einem Ort, an dem sich das Leben stilvoll genießen lässt – ob bei geselligen Abenden mit Freunden oder entspannten Stunden im Alltag.
Die hochwertige Ausstattung mit edlen Parkettböden, eleganten Fliesen und einer modernen Fußbodenheizung schafft ein behagliches Ambiente. Großflächige Fensterfronten mit elektrischen Rollläden sorgen für lichtdurchflutete Räume, während sie gleichzeitig Privatsphäre und Komfort garantieren.
Die moderne Einbauküche ist vollständig mit hochwertigen Elektrogeräten ausgestattet, inklusive Gas- und Stromkochfeld – perfekt für alle, die das Kochen lieben.
Ein echtes Highlight sind die zwei großzügigen Dachterrassen, die zum Entspannen im Freien einladen und einen atemberaubenden Blick auf den Feldberg und die Frankfurter Skyline bieten.
Für zusätzlichen Komfort sorgen zwei Tageslichtbäder sowie ein separates Gäste-WC.
Zur Wohnung gehören ein Carport mit E-Anschlussmöglichkeit sowie ein weiterer Stellplatz. Ein Kellerraum bietet zusätzlichen Stauraum, und ein gemeinschaftlicher Fahrradkeller steht ebenfalls zur Verfügung.
Die umweltfreundliche Fernwärme mit Biomasse sorgt für eine effiziente und nachhaltige Energieversorgung und erfüllt selbstverständlich die Vorgaben des GEG-Gesetzes.
Dieses exklusive Penthouse vereint modernes Wohnen, erstklassige Ausstattung und eine begehrte Lage mit unvergleichlicher Aussicht – ein Zuhause, das Luxus und Lebensqualität perfekt in Einklang bringt.
Bei Interesse oder für weitere Informationen stehe ich Ihnen selbstverständlich gerne zur Verfügung.
Diese außergewöhnliche Penthouse-Wohnung begeistert durch ihre Großzügigkeit, hochwertige Ausstattung und beeindruckende Ausblicke. Auf zwei Etagen erstrecken sich ca. 293 m² Wohnfläche, die höchsten Wohnansprüchen gerecht werden und keine Wünsche offenlassen.
Mit insgesamt fünf Zimmern, die sich bei Bedarf auf bis zu sieben Räume erweitern lassen, bietet das Penthouse vielseitige Nutzungsmöglichkeiten – ideal für Familien, Paare mit Platzbedarf oder Wohnen und Arbeiten unter einem Dach.
Das Herzstück der Wohnung bildet der offene Wohn-, Ess- und Küchenbereich, der durch seine Großzügigkeit und helle Atmosphäre besticht. Hier verschmelzen Komfort und Design zu einem Ort, an dem sich das Leben stilvoll genießen lässt – ob bei geselligen Abenden mit Freunden oder entspannten Stunden im Alltag.
Die hochwertige Ausstattung mit edlen Parkettböden, eleganten Fliesen und einer modernen Fußbodenheizung schafft ein behagliches Ambiente. Großflächige Fensterfronten mit elektrischen Rollläden sorgen für lichtdurchflutete Räume, während sie gleichzeitig Privatsphäre und Komfort garantieren.
Die moderne Einbauküche ist vollständig mit hochwertigen Elektrogeräten ausgestattet, inklusive Gas- und Stromkochfeld – perfekt für alle, die das Kochen lieben.
Ein echtes Highlight sind die zwei großzügigen Dachterrassen, die zum Entspannen im Freien einladen und einen atemberaubenden Blick auf den Feldberg und die Frankfurter Skyline bieten.
Für zusätzlichen Komfort sorgen zwei Tageslichtbäder sowie ein separates Gäste-WC.
Zur Wohnung gehören ein Carport mit E-Anschlussmöglichkeit sowie ein weiterer Stellplatz. Ein Kellerraum bietet zusätzlichen Stauraum, und ein gemeinschaftlicher Fahrradkeller steht ebenfalls zur Verfügung.
Die umweltfreundliche Fernwärme mit Biomasse sorgt für eine effiziente und nachhaltige Energieversorgung und erfüllt selbstverständlich die Vorgaben des GEG-Gesetzes.
Dieses exklusive Penthouse vereint modernes Wohnen, erstklassige Ausstattung und eine begehrte Lage mit unvergleichlicher Aussicht – ein Zuhause, das Luxus und Lebensqualität perfekt in Einklang bringt.
Bei Interesse oder für weitere Informationen stehe ich Ihnen selbstverständlich gerne zur Verfügung.
Ausstattung
- Parkett
- hochwertige Fliesen
- Fußbodenheizung
- elektrische Rollläden
- EBK mit allen E-Geräten
- Kochfeld Gas und Strom
- 2 Terrassen
- 2 Tageslicht-Bäder
- + Gäste-WC
- 1Carport mit Möglichkeit E-Anschluss direkt vor dem Hauseingang
- 1 zusätzlicher Stellplatz
- Fernwärme mit Biomasse
- großer Kellerraum
- Fahrradkeller
- hochwertige Fliesen
- Fußbodenheizung
- elektrische Rollläden
- EBK mit allen E-Geräten
- Kochfeld Gas und Strom
- 2 Terrassen
- 2 Tageslicht-Bäder
- + Gäste-WC
- 1Carport mit Möglichkeit E-Anschluss direkt vor dem Hauseingang
- 1 zusätzlicher Stellplatz
- Fernwärme mit Biomasse
- großer Kellerraum
- Fahrradkeller
Lage
Lage – Frankfurt-Eckenheim
Der Stadtteil Eckenheim gehört seit dem 1. April 1910 offiziell zu Frankfurt am Main und überzeugt durch seine zentrale Lage, nur etwa fünf Kilometer nördlich der Innenstadt. Umgeben von den Stadtteilen Bornheim, Frankfurter Berg, Nordend, Eschersheim, Preungesheim und Dornbusch, bietet Eckenheim eine ideale Verbindung zwischen urbanem Leben und dörflichem Charme.
Der historische Ortskern mit seinen verwinkelten Gassen und malerischen Fachwerkhäusern verleiht dem Viertel bis heute eine besondere, fast dörfliche Atmosphäre. Bis Anfang des 20. Jahrhunderts war Eckenheim tatsächlich ein eigenständiges Dorf – geprägt von Gärtnern und Bauern, die ihre Erzeugnisse über die Eckenheimer Landstraße in die Frankfurter Innenstadt lieferten.
Heute zeichnet sich Eckenheim durch eine hervorragende Verkehrsanbindung aus. Über die Bundesautobahn A661 ist der Stadtteil optimal an das regionale Straßennetz angebunden. Der öffentliche Nahverkehr bietet ebenfalls eine sehr gute Erreichbarkeit: Die Stadtbuslinien 34 und 39 sowie die Nachtbuslinie N4 sorgen für Mobilität zu jeder Tageszeit.
Auf der Schiene ist Eckenheim durch die U-Bahn-Linie U5 direkt mit der Frankfurter Innenstadt und dem Hauptbahnhof verbunden – ideal für Pendler und Stadtliebhaber gleichermaßen.
Der Stadtteil Eckenheim gehört seit dem 1. April 1910 offiziell zu Frankfurt am Main und überzeugt durch seine zentrale Lage, nur etwa fünf Kilometer nördlich der Innenstadt. Umgeben von den Stadtteilen Bornheim, Frankfurter Berg, Nordend, Eschersheim, Preungesheim und Dornbusch, bietet Eckenheim eine ideale Verbindung zwischen urbanem Leben und dörflichem Charme.
Der historische Ortskern mit seinen verwinkelten Gassen und malerischen Fachwerkhäusern verleiht dem Viertel bis heute eine besondere, fast dörfliche Atmosphäre. Bis Anfang des 20. Jahrhunderts war Eckenheim tatsächlich ein eigenständiges Dorf – geprägt von Gärtnern und Bauern, die ihre Erzeugnisse über die Eckenheimer Landstraße in die Frankfurter Innenstadt lieferten.
Heute zeichnet sich Eckenheim durch eine hervorragende Verkehrsanbindung aus. Über die Bundesautobahn A661 ist der Stadtteil optimal an das regionale Straßennetz angebunden. Der öffentliche Nahverkehr bietet ebenfalls eine sehr gute Erreichbarkeit: Die Stadtbuslinien 34 und 39 sowie die Nachtbuslinie N4 sorgen für Mobilität zu jeder Tageszeit.
Auf der Schiene ist Eckenheim durch die U-Bahn-Linie U5 direkt mit der Frankfurter Innenstadt und dem Hauptbahnhof verbunden – ideal für Pendler und Stadtliebhaber gleichermaßen.
Sonstige Angaben
Hinweise und nützliche Informationen:
1. Sämtliche Provisionsangaben verstehen sich inklusive der gesetzlichen Mehrwertsteuer von 19%. Die Provision ist vom Verkäufer, Käufer oder Gewerbemieter zu tragen.
2. Alle Daten stammen vom Eigentümer, Hausverwalter oder Vormieter, für die Richtigkeit übernehmen wir keine Haftung. Weitergabe an Dritte verpflichtet zur vollen Provisionszahlung.
3. Mit der Immobilienanfrage erklären sich Interessenten einverstanden, dass wir Sie wegen Objektangeboten telefonisch, schriftlich oder per E-Mail kontaktieren dürfen. Auch dürfen unsere Kooperationspartner in Sachen Immobilienangelegenheiten sie hierzu kontaktieren.
4. Sollte das Angebot nicht zu Ihrer Suche passen, finden Sie ggfls. Alternativangebot e auf unserer Homepage: www.mcm-immobilien.de
5. Aktuelle Informationen oder Neuankündigungen von Immobilienangebote finden Sie auch auf unsere Socialmedia Kanäle. Folgen Sie uns auch hier und bleiben Sie stets auf dem aktuellen Stand. INSTAGRAM: https://instagram.com/mcmimmobilien/ FACEBOOK: https://facebook.com/immo.mcm YouTupe: https://www.youtube.com/watch?v=b6nzaJKHPZ0&t=1s
6. Gerne können wir Ihnen auch ein Finanzierungsangebot für Ihre neue Immobilie erstellen. Sprechen Sie uns einfach an.
7. Sollte dieses Objekt nicht Ihren Vorstellungen entsprechen, können wir Sie gerne bei der Immobiliensuche unterstützen. Freuen uns hierzu auf Ihre Kontaktaufnahme.
8. Spielen Sie derzeit mit dem Gedanken Ihre Immobilie zu veräußern oder neu zu vermieten und möchten hierzu einen marktgerechten Preis erfahren, dann bieten wir Ihnen gerne, kostenfrei, unsere fach- und erfahrungsbezogene Immobilienbewertung an.
WICHTIGER HINWEIS ZUM WIDERRUFSRECHT:
Nach den EU-Verbraucherrechterichtlinien sind Makler seit dem 13.06.2014 dazu verpflichtet, ihre Kunden über ihr Widerrufsrecht bei Fernabsatzverträgen hinzuweisen. Ein Fernabsatzvertrag ist schon zustande gekommen, wenn Sie uns telefonisch oder per E-Mail bezüglich einer Immobilie kontaktieren.
Wir bitten daher um Ihr Verständnis, wenn Sie vor der Vereinbarung eines Besichtigungstermins bzw. vor Überlassung weiterer Informationen zur Immobilie, von uns eine E-Mail mit detaillierten Informationen bezüglich Ihres Widerrufsrechts bekommen. Erst danach können wir in vollem Umfang für Sie tätig werden. Diese Maßnahme dient dem Schutz der Verbraucher und wir hoffen, dass wir Sie - trotz des kleinen Mehraufwandes - Ihrer neuen Immobilie einen Schritt näher bringen können!
1. Sämtliche Provisionsangaben verstehen sich inklusive der gesetzlichen Mehrwertsteuer von 19%. Die Provision ist vom Verkäufer, Käufer oder Gewerbemieter zu tragen.
2. Alle Daten stammen vom Eigentümer, Hausverwalter oder Vormieter, für die Richtigkeit übernehmen wir keine Haftung. Weitergabe an Dritte verpflichtet zur vollen Provisionszahlung.
3. Mit der Immobilienanfrage erklären sich Interessenten einverstanden, dass wir Sie wegen Objektangeboten telefonisch, schriftlich oder per E-Mail kontaktieren dürfen. Auch dürfen unsere Kooperationspartner in Sachen Immobilienangelegenheiten sie hierzu kontaktieren.
4. Sollte das Angebot nicht zu Ihrer Suche passen, finden Sie ggfls. Alternativangebot e auf unserer Homepage: www.mcm-immobilien.de
5. Aktuelle Informationen oder Neuankündigungen von Immobilienangebote finden Sie auch auf unsere Socialmedia Kanäle. Folgen Sie uns auch hier und bleiben Sie stets auf dem aktuellen Stand. INSTAGRAM: https://instagram.com/mcmimmobilien/ FACEBOOK: https://facebook.com/immo.mcm YouTupe: https://www.youtube.com/watch?v=b6nzaJKHPZ0&t=1s
6. Gerne können wir Ihnen auch ein Finanzierungsangebot für Ihre neue Immobilie erstellen. Sprechen Sie uns einfach an.
7. Sollte dieses Objekt nicht Ihren Vorstellungen entsprechen, können wir Sie gerne bei der Immobiliensuche unterstützen. Freuen uns hierzu auf Ihre Kontaktaufnahme.
8. Spielen Sie derzeit mit dem Gedanken Ihre Immobilie zu veräußern oder neu zu vermieten und möchten hierzu einen marktgerechten Preis erfahren, dann bieten wir Ihnen gerne, kostenfrei, unsere fach- und erfahrungsbezogene Immobilienbewertung an.
WICHTIGER HINWEIS ZUM WIDERRUFSRECHT:
Nach den EU-Verbraucherrechterichtlinien sind Makler seit dem 13.06.2014 dazu verpflichtet, ihre Kunden über ihr Widerrufsrecht bei Fernabsatzverträgen hinzuweisen. Ein Fernabsatzvertrag ist schon zustande gekommen, wenn Sie uns telefonisch oder per E-Mail bezüglich einer Immobilie kontaktieren.
Wir bitten daher um Ihr Verständnis, wenn Sie vor der Vereinbarung eines Besichtigungstermins bzw. vor Überlassung weiterer Informationen zur Immobilie, von uns eine E-Mail mit detaillierten Informationen bezüglich Ihres Widerrufsrechts bekommen. Erst danach können wir in vollem Umfang für Sie tätig werden. Diese Maßnahme dient dem Schutz der Verbraucher und wir hoffen, dass wir Sie - trotz des kleinen Mehraufwandes - Ihrer neuen Immobilie einen Schritt näher bringen können!



