Ihr Ansprechpartner
WESTEND - Erstbezug nach kpl. Modernisierung. 3 ZW mit neuem Bad, großer Balkon, neue Ebk, Parkett und Garage
60325 Frankfurt am Main
263899
Objekt-Nr.:
263899Provision:
Miete:
2.200,00 €Nebenkosten:
350,00 €Objektbeschreibung
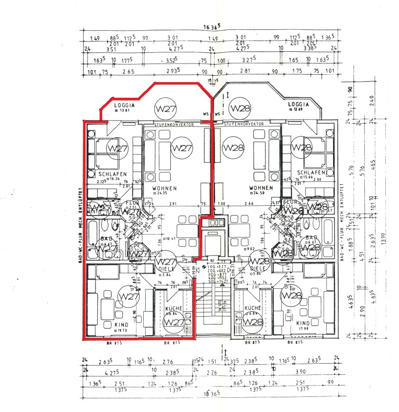
Diese hochwertige 3-Zimmerwohnung befindet sich in begehrter Lage im Frankfurter Westend und überzeugt durch ihre großzügige Raumaufteilung sowie eine moderne Ausstattung. Die Wohnung wird aktuell vollständig modernisiert und wird nun erstmals nach der Sanierung bezogen.
Auf ca. 102 m² Wohnfläche erwarten Sie helle, gut geschnittene Räume mit einem angenehmen Wohnambiente. Der hochwertige Parkettboden unterstreicht den zeitgemäßen Charakter der Wohnung. Herzstück ist der großzügige Wohn- und Essbereich mit Zugang zum großen Balkon, der zum Entspannen einlädt.
Vom Balkon aus genießen sie eine parkähnliche Atmosphäre, auf die sie schauen.
Die neue Einbauküche ist modern gestaltet und funktional ausgestattet. Das neu gestaltete Badezimmer überzeugt mit zeitlosen Materialien und einer hochwertigen Sanitärausstattung wie beispielsweise einer großzügigen Walk-in-Dusche Darüber hinaus verfügt die Wohnung über ein Gäste-WC und einen praktischen Abstellraum.
Zwei weitere Zimmer bieten vielseitige Nutzungsmöglichkeiten als Schlaf-, Kinder- oder Arbeitszimmer.
Ein Personenaufzug sorgt für komfortablen Zugang zur Wohnung. Abgerundet wird das Angebot durch eine Kfz-Abstellplatz in der Tiefgarage, die bequemes und sicheres Parken ermöglicht.
Dank der attraktiven Lage im Westend profitieren Sie von einer hervorragenden Infrastruktur, einer sehr guten Anbindung an den öffentlichen Nahverkehr sowie der Nähe zu Einkaufsmöglichkeiten und Gastronomie.
HINWEIS:
Aufgrund der aktuellen Modernisierungsmaßnahmen konnten bislang keine weiteren Bilder angefrtigt werden. gerne reichen wir diese in den nächsten tagen nach.
Auf ca. 102 m² Wohnfläche erwarten Sie helle, gut geschnittene Räume mit einem angenehmen Wohnambiente. Der hochwertige Parkettboden unterstreicht den zeitgemäßen Charakter der Wohnung. Herzstück ist der großzügige Wohn- und Essbereich mit Zugang zum großen Balkon, der zum Entspannen einlädt.
Vom Balkon aus genießen sie eine parkähnliche Atmosphäre, auf die sie schauen.
Die neue Einbauküche ist modern gestaltet und funktional ausgestattet. Das neu gestaltete Badezimmer überzeugt mit zeitlosen Materialien und einer hochwertigen Sanitärausstattung wie beispielsweise einer großzügigen Walk-in-Dusche Darüber hinaus verfügt die Wohnung über ein Gäste-WC und einen praktischen Abstellraum.
Zwei weitere Zimmer bieten vielseitige Nutzungsmöglichkeiten als Schlaf-, Kinder- oder Arbeitszimmer.
Ein Personenaufzug sorgt für komfortablen Zugang zur Wohnung. Abgerundet wird das Angebot durch eine Kfz-Abstellplatz in der Tiefgarage, die bequemes und sicheres Parken ermöglicht.
Dank der attraktiven Lage im Westend profitieren Sie von einer hervorragenden Infrastruktur, einer sehr guten Anbindung an den öffentlichen Nahverkehr sowie der Nähe zu Einkaufsmöglichkeiten und Gastronomie.
HINWEIS:
Aufgrund der aktuellen Modernisierungsmaßnahmen konnten bislang keine weiteren Bilder angefrtigt werden. gerne reichen wir diese in den nächsten tagen nach.
Ausstattung
- Erstbezug nach kompletter Modernisierung
- Ca. 102 m² Wohnfläche
- Großzügige 3-Zimmer-Wohnung
- Neue, moderne Einbauküche
- Neues, hochwertig ausgestattetes Badezimmer
- Gäste WC
- Großer Balkon
- Hochwertiger Parkettboden in allen Wohnräumen
- Personenaufzug im Haus
- Garage vorhanden für zusätzlich € 150,- mtl.
- Attraktive, gefragte Lage im Westend
- Ca. 102 m² Wohnfläche
- Großzügige 3-Zimmer-Wohnung
- Neue, moderne Einbauküche
- Neues, hochwertig ausgestattetes Badezimmer
- Gäste WC
- Großer Balkon
- Hochwertiger Parkettboden in allen Wohnräumen
- Personenaufzug im Haus
- Garage vorhanden für zusätzlich € 150,- mtl.
- Attraktive, gefragte Lage im Westend
Lage
Westend:
Exklusive Wohnlage, erstklassige Bürostandorte und große Parkanlagen charakterisieren das Westend zwischen der City und Bockenheim zu beiden Seiten der Bockenheimer Landstraße. Der Grüneburgweg trennt die Stadtteile Westend - Nord und Westend - Süd.
Das Westend zwischen Mainzer Landstraße, Alleenring und Eschersheimer Landstraße ist das exklusivste und teuerste Wohnviertel Frankfurts, in jeder Hinsicht eine erste Adresse. Der Bauspekulation der 60er und frühen 70er Jahre fielen zahllose alte Häuser des ehemals großbürgerlichen Villenviertels zum Opfer, bevor dem Wildwuchs durch Bürgerinitiative ein Ende bereitet wurde. Grüneburgpark und Palmengarten zählen zu den größten und beliebtesten Parkanlagen der Stadt. Zum Westend gehören auch größere Teile des Messegeländes sowie das ehemalige US - Hauptquartier an der Miquelallee.
Verkehr: Über Friedrich - Ebert - Anlage und Theodor - Heuss - Allee erreicht man schnell das Westkreuz Frankfurt. Alle S - Bahn - Linien halten an der Taunusanlage, bis zum Hauptbahnhof ist es nicht weit. Die U - Bahn - Linien1, 2, 3, 6 und 7 fahren in wenigen Minuten zur Hauptwache, die Verlängerung der U 4 vom Hauptbahnhof bis zur Bockenheimer Warte wurde im Jahre 2000 fertig.
Exklusive Wohnlage, erstklassige Bürostandorte und große Parkanlagen charakterisieren das Westend zwischen der City und Bockenheim zu beiden Seiten der Bockenheimer Landstraße. Der Grüneburgweg trennt die Stadtteile Westend - Nord und Westend - Süd.
Das Westend zwischen Mainzer Landstraße, Alleenring und Eschersheimer Landstraße ist das exklusivste und teuerste Wohnviertel Frankfurts, in jeder Hinsicht eine erste Adresse. Der Bauspekulation der 60er und frühen 70er Jahre fielen zahllose alte Häuser des ehemals großbürgerlichen Villenviertels zum Opfer, bevor dem Wildwuchs durch Bürgerinitiative ein Ende bereitet wurde. Grüneburgpark und Palmengarten zählen zu den größten und beliebtesten Parkanlagen der Stadt. Zum Westend gehören auch größere Teile des Messegeländes sowie das ehemalige US - Hauptquartier an der Miquelallee.
Verkehr: Über Friedrich - Ebert - Anlage und Theodor - Heuss - Allee erreicht man schnell das Westkreuz Frankfurt. Alle S - Bahn - Linien halten an der Taunusanlage, bis zum Hauptbahnhof ist es nicht weit. Die U - Bahn - Linien1, 2, 3, 6 und 7 fahren in wenigen Minuten zur Hauptwache, die Verlängerung der U 4 vom Hauptbahnhof bis zur Bockenheimer Warte wurde im Jahre 2000 fertig.
Sonstige Angaben
Hinweise und nützliche Informationen:
1. Sämtliche Provisionsangaben verstehen sich inklusive der gesetzlichen Mehrwertsteuer von 19%. Die Provision ist vom Verkäufer, Käufer oder Gewerbemieter zu tragen.
2. Alle Daten stammen vom Eigentümer, Hausverwalter oder Vormieter, für die Richtigkeit übernehmen wir keine Haftung. Weitergabe an Dritte verpflichtet zur vollen Provisionszahlung.
3. Mit der Immobilienanfrage erklären sich Interessenten einverstanden, dass wir Sie wegen Objektangeboten telefonisch, schriftlich oder per E-Mail kontaktieren dürfen. Auch dürfen unsere Kooperationspartner in Sachen Immobilienangelegenheiten sie hierzu kontaktieren.
4. Sollte das Angebot nicht zu Ihrer Suche passen, finden Sie ggfls. Alternativangebot e auf unserer Homepage: www.mcm-immobilien.de
5. Aktuelle Informationen oder Neuankündigungen von Immobilienangebote finden Sie auch auf unsere Socialmedia Kanäle. Folgen Sie uns auch hier und bleiben Sie stets auf dem aktuellen Stand. INSTAGRAM: https://instagram.com/mcmimmobilien/ FACEBOOK: https://facebook.com/immo.mcm YouTupe: https://www.youtube.com/watch?v=b6nzaJKHPZ0&t=1s
6. Gerne können wir Ihnen auch ein Finanzierungsangebot für Ihre neue Immobilie erstellen. Sprechen Sie uns einfach an.
7. Sollte dieses Objekt nicht Ihren Vorstellungen entsprechen, können wir Sie gerne bei der Immobiliensuche unterstützen. Freuen uns hierzu auf Ihre Kontaktaufnahme.
8. Spielen Sie derzeit mit dem Gedanken Ihre Immobilie zu veräußern oder neu zu vermieten und möchten hierzu einen marktgerechten Preis erfahren, dann bieten wir Ihnen gerne, kostenfrei, unsere fach- und erfahrungsbezogene Immobilienbewertung an.
WICHTIGER HINWEIS ZUM WIDERRUFSRECHT:
Nach den EU-Verbraucherrechterichtlinien sind Makler seit dem 13.06.2014 dazu verpflichtet, ihre Kunden über ihr Widerrufsrecht bei Fernabsatzverträgen hinzuweisen. Ein Fernabsatzvertrag ist schon zustande gekommen, wenn Sie uns telefonisch oder per E-Mail bezüglich einer Immobilie kontaktieren.
Wir bitten daher um Ihr Verständnis, wenn Sie vor der Vereinbarung eines Besichtigungstermins bzw. vor Überlassung weiterer Informationen zur Immobilie, von uns eine E-Mail mit detaillierten Informationen bezüglich Ihres Widerrufsrechts bekommen. Erst danach können wir in vollem Umfang für Sie tätig werden. Diese Maßnahme dient dem Schutz der Verbraucher und wir hoffen, dass wir Sie - trotz des kleinen Mehraufwandes - Ihrer neuen Immobilie einen Schritt näher bringen können!
1. Sämtliche Provisionsangaben verstehen sich inklusive der gesetzlichen Mehrwertsteuer von 19%. Die Provision ist vom Verkäufer, Käufer oder Gewerbemieter zu tragen.
2. Alle Daten stammen vom Eigentümer, Hausverwalter oder Vormieter, für die Richtigkeit übernehmen wir keine Haftung. Weitergabe an Dritte verpflichtet zur vollen Provisionszahlung.
3. Mit der Immobilienanfrage erklären sich Interessenten einverstanden, dass wir Sie wegen Objektangeboten telefonisch, schriftlich oder per E-Mail kontaktieren dürfen. Auch dürfen unsere Kooperationspartner in Sachen Immobilienangelegenheiten sie hierzu kontaktieren.
4. Sollte das Angebot nicht zu Ihrer Suche passen, finden Sie ggfls. Alternativangebot e auf unserer Homepage: www.mcm-immobilien.de
5. Aktuelle Informationen oder Neuankündigungen von Immobilienangebote finden Sie auch auf unsere Socialmedia Kanäle. Folgen Sie uns auch hier und bleiben Sie stets auf dem aktuellen Stand. INSTAGRAM: https://instagram.com/mcmimmobilien/ FACEBOOK: https://facebook.com/immo.mcm YouTupe: https://www.youtube.com/watch?v=b6nzaJKHPZ0&t=1s
6. Gerne können wir Ihnen auch ein Finanzierungsangebot für Ihre neue Immobilie erstellen. Sprechen Sie uns einfach an.
7. Sollte dieses Objekt nicht Ihren Vorstellungen entsprechen, können wir Sie gerne bei der Immobiliensuche unterstützen. Freuen uns hierzu auf Ihre Kontaktaufnahme.
8. Spielen Sie derzeit mit dem Gedanken Ihre Immobilie zu veräußern oder neu zu vermieten und möchten hierzu einen marktgerechten Preis erfahren, dann bieten wir Ihnen gerne, kostenfrei, unsere fach- und erfahrungsbezogene Immobilienbewertung an.
WICHTIGER HINWEIS ZUM WIDERRUFSRECHT:
Nach den EU-Verbraucherrechterichtlinien sind Makler seit dem 13.06.2014 dazu verpflichtet, ihre Kunden über ihr Widerrufsrecht bei Fernabsatzverträgen hinzuweisen. Ein Fernabsatzvertrag ist schon zustande gekommen, wenn Sie uns telefonisch oder per E-Mail bezüglich einer Immobilie kontaktieren.
Wir bitten daher um Ihr Verständnis, wenn Sie vor der Vereinbarung eines Besichtigungstermins bzw. vor Überlassung weiterer Informationen zur Immobilie, von uns eine E-Mail mit detaillierten Informationen bezüglich Ihres Widerrufsrechts bekommen. Erst danach können wir in vollem Umfang für Sie tätig werden. Diese Maßnahme dient dem Schutz der Verbraucher und wir hoffen, dass wir Sie - trotz des kleinen Mehraufwandes - Ihrer neuen Immobilie einen Schritt näher bringen können!









