Ihr Ansprechpartner
F-Ostend, moderne 4-Zimmerwohnung, top ausgestattet, zentral unweit der EZB
60314 Frankfurt am Main
44907
Objekt-Nr.:
44907Provision:
2,98 % inkl. gesetzl. MwSt. KäuferprovisionKaufpreis:
470.000,00 €Nebenkosten:
Objektbeschreibung
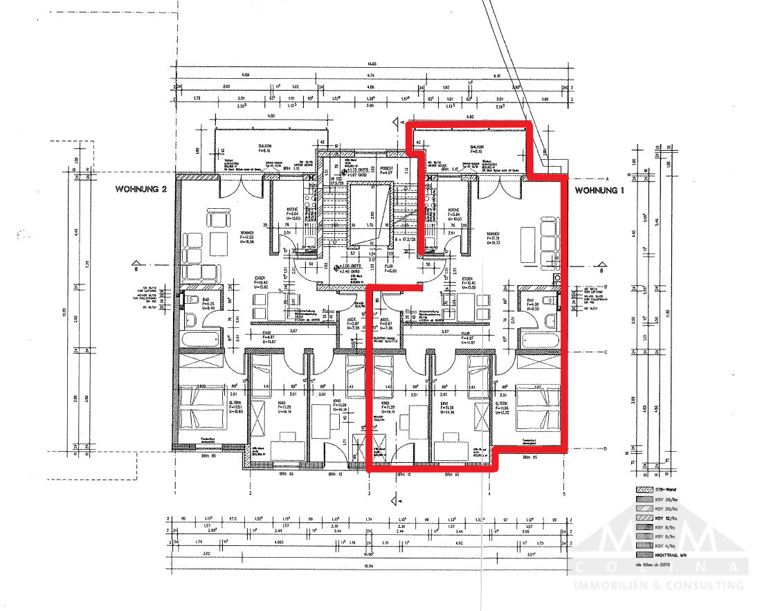
Diese schöne 4-Zimmerwohnung befindet sich im 1. OG eines gepflegten Hauses aus dem Jahr 2000 und ist bequem mit dem Aufzug erreichbar.
Die Wohnung ist Barrierefrei, teilt sich auf in einen großen, offenen Wohn, -Essbereich, einer separaten Küche mit moderner Einbauküche inklusive aller Elektrogeräte, 3 etwa gleich großen Schlafzimmern, sowie einem Duschbad und einer kleinen Abstellkammer.
Die Wohnung ist sehr hell und freundlich und hat einen tollen Grundriss. Die dreifach verglasten Fenster garantieren für optimale Energieeffizienz und wohnliche Ruhe.
Alles ist in modernen, gedeckten Farben gestaltet. Ein Highlight der Wohnung ist außerdem der große Balkon, welcher vom Wohnbereich zu erreichen ist.
Zur Wohnung gehört zudem noch ein Keller sowie ein Kfz-Stellplatz, welcher mitverkauft wird.
Sie haben Fragen oder möchten einen Besichtigungstermin vereinbaren? Rufen Sie uns gerne an oder senden Sie uns eine Mail.
Die Wohnung ist Barrierefrei, teilt sich auf in einen großen, offenen Wohn, -Essbereich, einer separaten Küche mit moderner Einbauküche inklusive aller Elektrogeräte, 3 etwa gleich großen Schlafzimmern, sowie einem Duschbad und einer kleinen Abstellkammer.
Die Wohnung ist sehr hell und freundlich und hat einen tollen Grundriss. Die dreifach verglasten Fenster garantieren für optimale Energieeffizienz und wohnliche Ruhe.
Alles ist in modernen, gedeckten Farben gestaltet. Ein Highlight der Wohnung ist außerdem der große Balkon, welcher vom Wohnbereich zu erreichen ist.
Zur Wohnung gehört zudem noch ein Keller sowie ein Kfz-Stellplatz, welcher mitverkauft wird.
Sie haben Fragen oder möchten einen Besichtigungstermin vereinbaren? Rufen Sie uns gerne an oder senden Sie uns eine Mail.
Ausstattung
- großer Südbalkon
- großer Wohn,-Essbereich
- moderne Einbauküche
- Kfz-Stellplatz
- modernes Bad mit großer Dusche
- dreifach verglaste Fenster
- Energieeffizienz C
- Stellplatz Kauf 25.000,-€
- Barrierefrei
- großer Wohn,-Essbereich
- moderne Einbauküche
- Kfz-Stellplatz
- modernes Bad mit großer Dusche
- dreifach verglaste Fenster
- Energieeffizienz C
- Stellplatz Kauf 25.000,-€
- Barrierefrei
Lage
Ostend
Das Ostend ist in , und das hat mit der Konversion zu tun, die hier im letzten Jahrzehnt stattgefunden hat. Der Osthafen wurde umgestaltet und am Mainufer wird jetzt gewohnt, die größte Markthalle
Europas wird neuer Sitz der Europäischen Zentralbank, die ehemalige Industriemeile der Hanauer Landstraße zeigt jetzt ein junges und dynamisches Gesicht. Design-Möbelläden, Werbeagenturen und IT-Unternehmen sind in die schicken Lofts gezogen, Szene-Clubs wie King Kamehameha oder der Havanna Club setzen die nächtlichen Glanzlichter.
Das erste Hochhaus Frankfurts steht hier, der Mousonturm - ein Avantgardetheater, das internationale Spitzengruppen an den Main holt. Ein besonderes Highlight ist das Theater im Frankfurter Zoo direkt am Alfred-Brehm-Platz. Überhaupt Kultur: Die Romanfabrik zieht Künstler und Denker ins Ostend, die Akademie für Kommunikation und Design die Kreativen an den Ostpark. Hier lernt der Nicht-Frankfurter auf der zweimal jährlich stattfinden Dippemess, dass Dippe zu Deutsch nichts anderes als Töpfe heißt.
Verkehr: Über die Ausfahrt Frankfurt - Hanauer Landstraße besteht Anschluss an die A 661 (Osttangente). An der Haltestelle Ostendstraße halten alle S - Bahn Linien. Die U - Bahn - Linien 6 und 7 sowie die Straßenbahnlinien 11 und 14 fahren in wenigen Minuten in die City. Die Buslinie 31 erschließt den Osthafen.
Das Ostend ist in , und das hat mit der Konversion zu tun, die hier im letzten Jahrzehnt stattgefunden hat. Der Osthafen wurde umgestaltet und am Mainufer wird jetzt gewohnt, die größte Markthalle
Europas wird neuer Sitz der Europäischen Zentralbank, die ehemalige Industriemeile der Hanauer Landstraße zeigt jetzt ein junges und dynamisches Gesicht. Design-Möbelläden, Werbeagenturen und IT-Unternehmen sind in die schicken Lofts gezogen, Szene-Clubs wie King Kamehameha oder der Havanna Club setzen die nächtlichen Glanzlichter.
Das erste Hochhaus Frankfurts steht hier, der Mousonturm - ein Avantgardetheater, das internationale Spitzengruppen an den Main holt. Ein besonderes Highlight ist das Theater im Frankfurter Zoo direkt am Alfred-Brehm-Platz. Überhaupt Kultur: Die Romanfabrik zieht Künstler und Denker ins Ostend, die Akademie für Kommunikation und Design die Kreativen an den Ostpark. Hier lernt der Nicht-Frankfurter auf der zweimal jährlich stattfinden Dippemess, dass Dippe zu Deutsch nichts anderes als Töpfe heißt.
Verkehr: Über die Ausfahrt Frankfurt - Hanauer Landstraße besteht Anschluss an die A 661 (Osttangente). An der Haltestelle Ostendstraße halten alle S - Bahn Linien. Die U - Bahn - Linien 6 und 7 sowie die Straßenbahnlinien 11 und 14 fahren in wenigen Minuten in die City. Die Buslinie 31 erschließt den Osthafen.
Sonstige Angaben
Wichtige Hinweise:
1. Alle Daten stammen vom Eigentümer, Hausverwalter oder Vormieter, für die Richtigkeit übernehmen wir keine Haftung. Weitergabe an Dritte verpflichtet zur vollen Provisionszahlung.
2. Mit der Immobilienanfrage erklären sich Interessenten einverstanden, dass das Immobilienunternehmen wegen Objektangeboten telefonisch, schriftlich oder per E-Mail Kontakt aufnimmt.
1. Alle Daten stammen vom Eigentümer, Hausverwalter oder Vormieter, für die Richtigkeit übernehmen wir keine Haftung. Weitergabe an Dritte verpflichtet zur vollen Provisionszahlung.
2. Mit der Immobilienanfrage erklären sich Interessenten einverstanden, dass das Immobilienunternehmen wegen Objektangeboten telefonisch, schriftlich oder per E-Mail Kontakt aufnimmt.












